Tietoa kohteesta
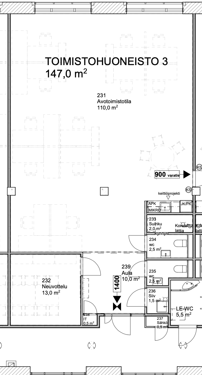
Vuokrataan 147m² toimistotila Tampereen ytimestä. Uutta jäähdytettyä ja nykyaikaista toimistotilaa, vanhassa tehdasrakennuksessa.
KAIKKI UUTTA
Jäähdyty, ilmanvaihto, lämmitys, atk-verkko, valokuitu valmius, aurinkosuojaverhot, 3m ikkunateippaukset, led-valaistus, ovipuhelimet/ovenavaus, keittiöt, äänieristetyt neuvotteluhuoneet, naisten ja miesten wc:t, Inva wc:t käytävillä, suihkutila, siivoushuone, Viereiset tilat yhdistettävissä toisiinsa, Hissi.
Toimistolle on hyvät kulkuyhteydet ratikalla, autolla, bussilla sekä kävellen. Pihasta löytyy myös paljon ilmaisia parkkipaikkoja.
Samasta kiinteistöstä löytyy myös ravintola Bistro Pannu&Huone jossa pääsee herkuttelemaan työpäivän aikana.
Ota meihin yhteyttä saadaksesi lisätietoa toimistotiloista!


















